13
House

11 Argus Crescent
Doncaster East vic 3109
House
4
2
2
734 m2 (approx)
Agent
Todd Lucas
0401 941 210Harry Fares
0419 667 744Office Contact
Barry Plant Manningham
03 9842 8888Multi-Generational Living in the EDSC Zone
Sale by SET DATE® Closing Tuesday, 28th October at 5:00pm.
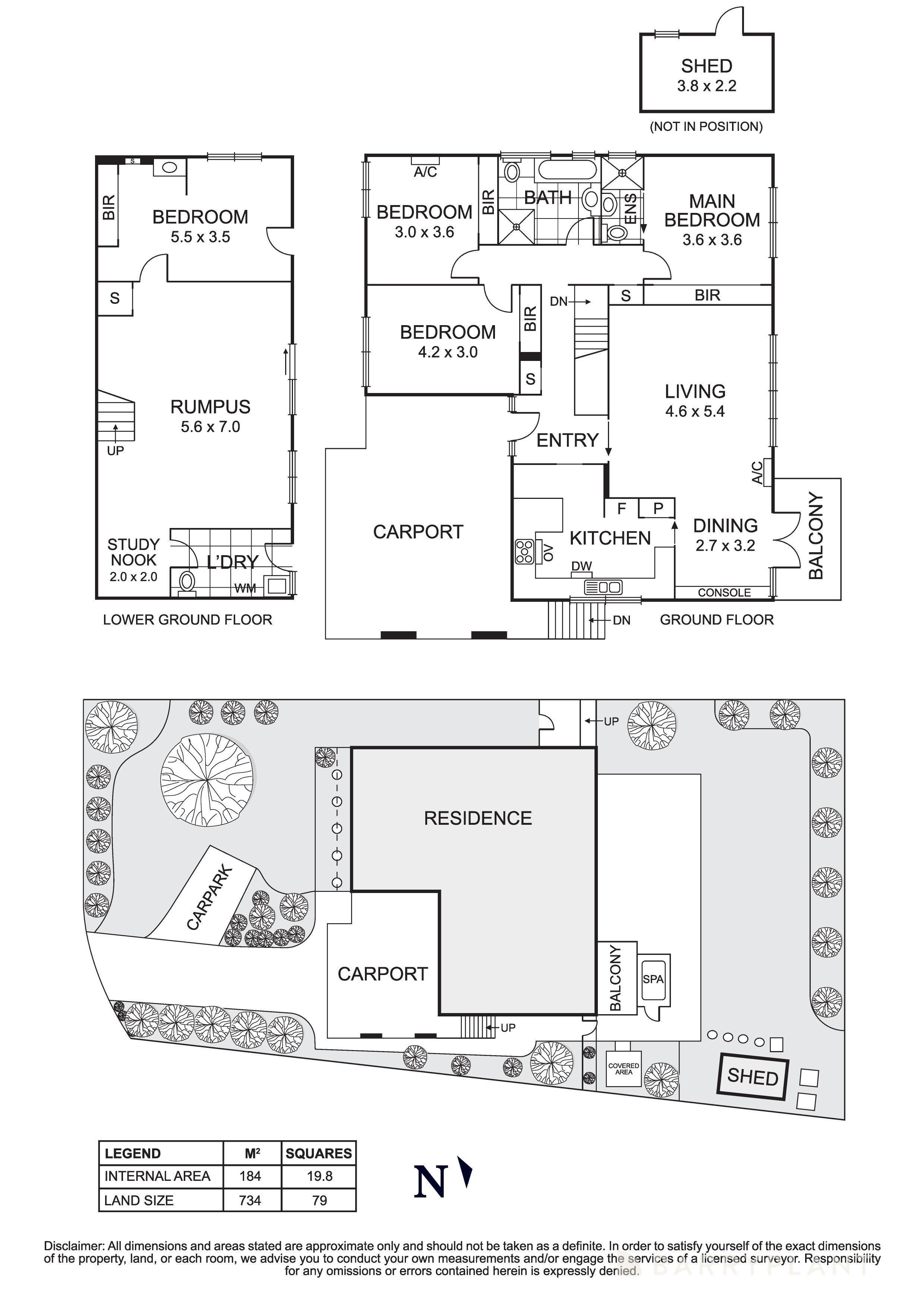
Offering multi-generational living in the sought after East Doncaster Secondary College school zone, this family focused home has much to reveal, from its intricate ground floor detail to its versatile downstairs rumpus space.
Incredibly located close to all you could ever need, entry to the residence is via polished timber flooring and high ceilings which flow through into a generous living and dining area with direct balcony access and an abundance of natural light.
Central to the design is an updated kitchen with quality bench tops, a 900mm stainless steel gas cook top, oven and range hood, as well as a dishwasher, breakfast bar and plenty of storage.
Good-sized bedrooms with robes include a master with en-suite, while all have proximity to the upgraded main bathroom with shower, separate bath and quality tiling.
Before you explore the beautiful outdoors, head downstairs to a versatile rumpus/lounge with its own study nook and adjoining bedroom with built-in robe and private sink.
A sun-drenched open outdoor entertaining area is the focus of a north-facing backyard with covered barbecue space as well as room for the kids and pets to play.
Gas ducted heating, split-system air-conditioning, a large front yard, double carport, lower ground floor laundry and additional off-street parking are just some of the inclusions.
Enjoying a second to none location within walking distance to East Doncaster Secondary College, Donburn Primary School and the Tunstall Square Shopping Centre, close to Donvale Reserve, Devon Plaza and Ruffey Lake Park, with great connection to Springvale Rd, Blackburn Rd, Doncaster Rd, Westfield Doncaster Shoppingtown, Manningham Rd and the Eastern Freeway.
Offering multi-generational living in the sought after East Doncaster Secondary College school zone, this family focused home has much to reveal, from its intricate ground floor detail to its versatile downstairs rumpus space.
Incredibly located close to all you could ever need, entry to the residence is via polished timber flooring and high ceilings which flow through into a generous living and dining area with direct balcony access and an abundance of natural light.
Central to the design is an updated kitchen with quality bench tops, a 900mm stainless steel gas cook top, oven and range hood, as well as a dishwasher, breakfast bar and plenty of storage.
Good-sized bedrooms with robes include a master with en-suite, while all have proximity to the upgraded main bathroom with shower, separate bath and quality tiling.
Before you explore the beautiful outdoors, head downstairs to a versatile rumpus/lounge with its own study nook and adjoining bedroom with built-in robe and private sink.
A sun-drenched open outdoor entertaining area is the focus of a north-facing backyard with covered barbecue space as well as room for the kids and pets to play.
Gas ducted heating, split-system air-conditioning, a large front yard, double carport, lower ground floor laundry and additional off-street parking are just some of the inclusions.
Enjoying a second to none location within walking distance to East Doncaster Secondary College, Donburn Primary School and the Tunstall Square Shopping Centre, close to Donvale Reserve, Devon Plaza and Ruffey Lake Park, with great connection to Springvale Rd, Blackburn Rd, Doncaster Rd, Westfield Doncaster Shoppingtown, Manningham Rd and the Eastern Freeway.
Property Features
- toilets