8
Unit

1/482-484 Mitcham Road
Mitcham vic 3132
Unit
2
1
1
Agent
Gavin Hoo
0403 350 942James Wardrop
0409 827 616Office Contact
Barry Plant Whitehorse
03 9874 3355Smart Investment or First Home
Tucked away in a boutique group, this immaculate single-level unit combines generous proportions with low-maintenance ease. Perfectly placed for lifestyle convenience, it’s just a short stroll to Mitcham Station, shops, cafés and eateries.
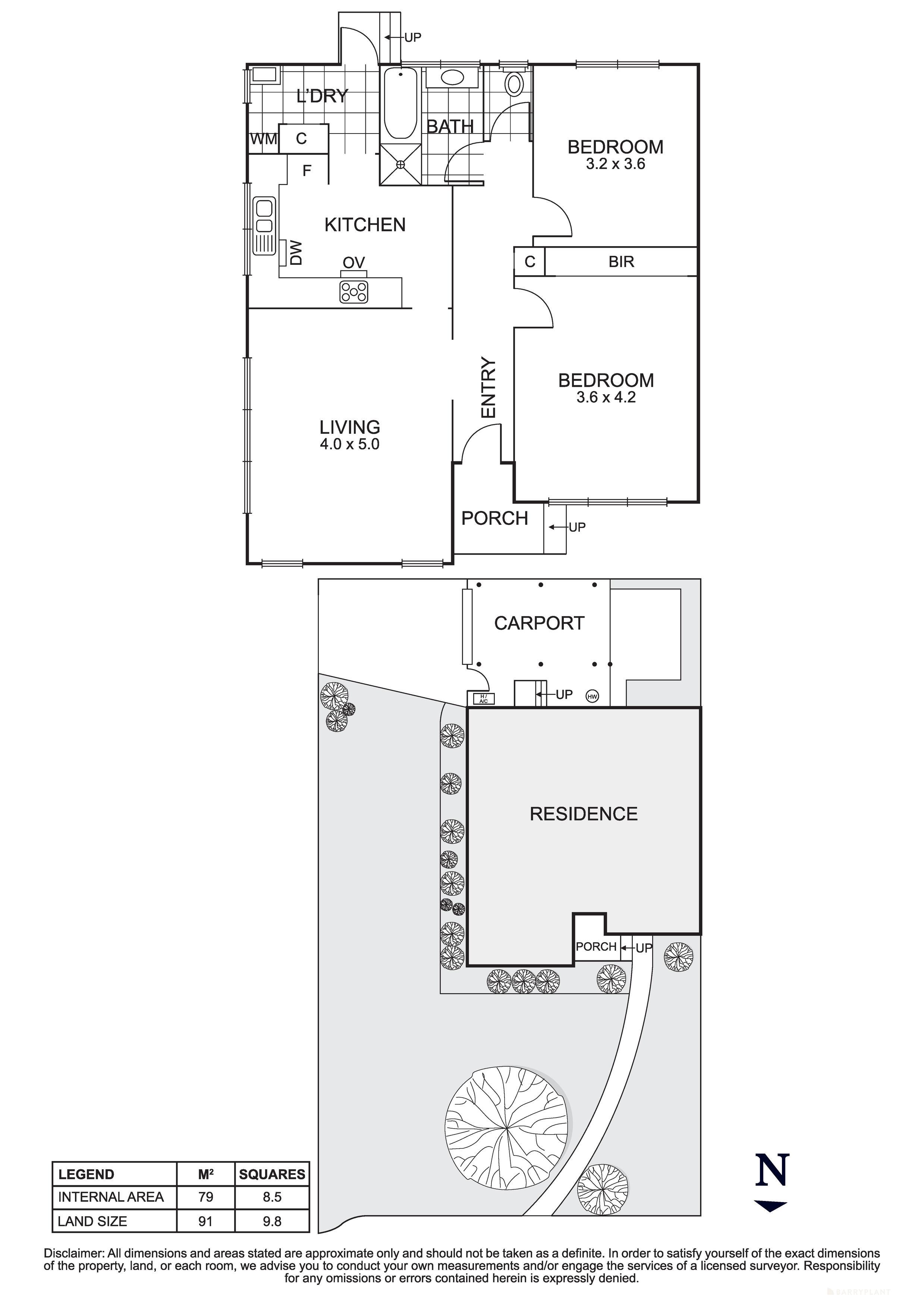
The solid brick veneer home welcomes you into a light-filled open-plan living and dining zone, complemented by polished timber floors and heating/cooling system. The master bedroom features double built-in robes, while a second robed bedroom shares a central bathroom with bath, shower and separate toilet. A full laundry and linen cupboard add everyday functionality.
The contemporary kitchen/meals area boasts stainless steel appliances and dishwasher, flowing seamlessly to a private courtyard with a paved alfresco—ideal for barbecues and entertaining. Secure rear access leads to a single carport plus an additional driveway car space.
Appealing to professional couples, downsizers, first-home buyers and investors alike, the property enjoys unrivalled convenience. Walk to Britannia Mall, Asian grocers, international dining and Rangeview cafés, with Brentford Square, Forest Hill Chase, Home HQ, Eastland via Eastlink, and Box Hill Central all close by. Zoned for Antonio Park Primary and Mullauna Secondary College, and surrounded by parks, trails and excellent freeway access, this is a lifestyle opportunity not to be missed.
The solid brick veneer home welcomes you into a light-filled open-plan living and dining zone, complemented by polished timber floors and heating/cooling system. The master bedroom features double built-in robes, while a second robed bedroom shares a central bathroom with bath, shower and separate toilet. A full laundry and linen cupboard add everyday functionality.
The contemporary kitchen/meals area boasts stainless steel appliances and dishwasher, flowing seamlessly to a private courtyard with a paved alfresco—ideal for barbecues and entertaining. Secure rear access leads to a single carport plus an additional driveway car space.
Appealing to professional couples, downsizers, first-home buyers and investors alike, the property enjoys unrivalled convenience. Walk to Britannia Mall, Asian grocers, international dining and Rangeview cafés, with Brentford Square, Forest Hill Chase, Home HQ, Eastland via Eastlink, and Box Hill Central all close by. Zoned for Antonio Park Primary and Mullauna Secondary College, and surrounded by parks, trails and excellent freeway access, this is a lifestyle opportunity not to be missed.
Auction
Saturday 25 October
3:00 PM